Organizujete manifestaciju? Treba vam ograda!

Na pravom ste mestu!

O nama

Iznajmljujemo ograde za koncerte i druge manifestacije na kojima je neophodno ograditi prostor. Zaštitne žičane ograde su opšte namene - za javne površine, parkove, sportske terene, javne skupove i manifestacije.

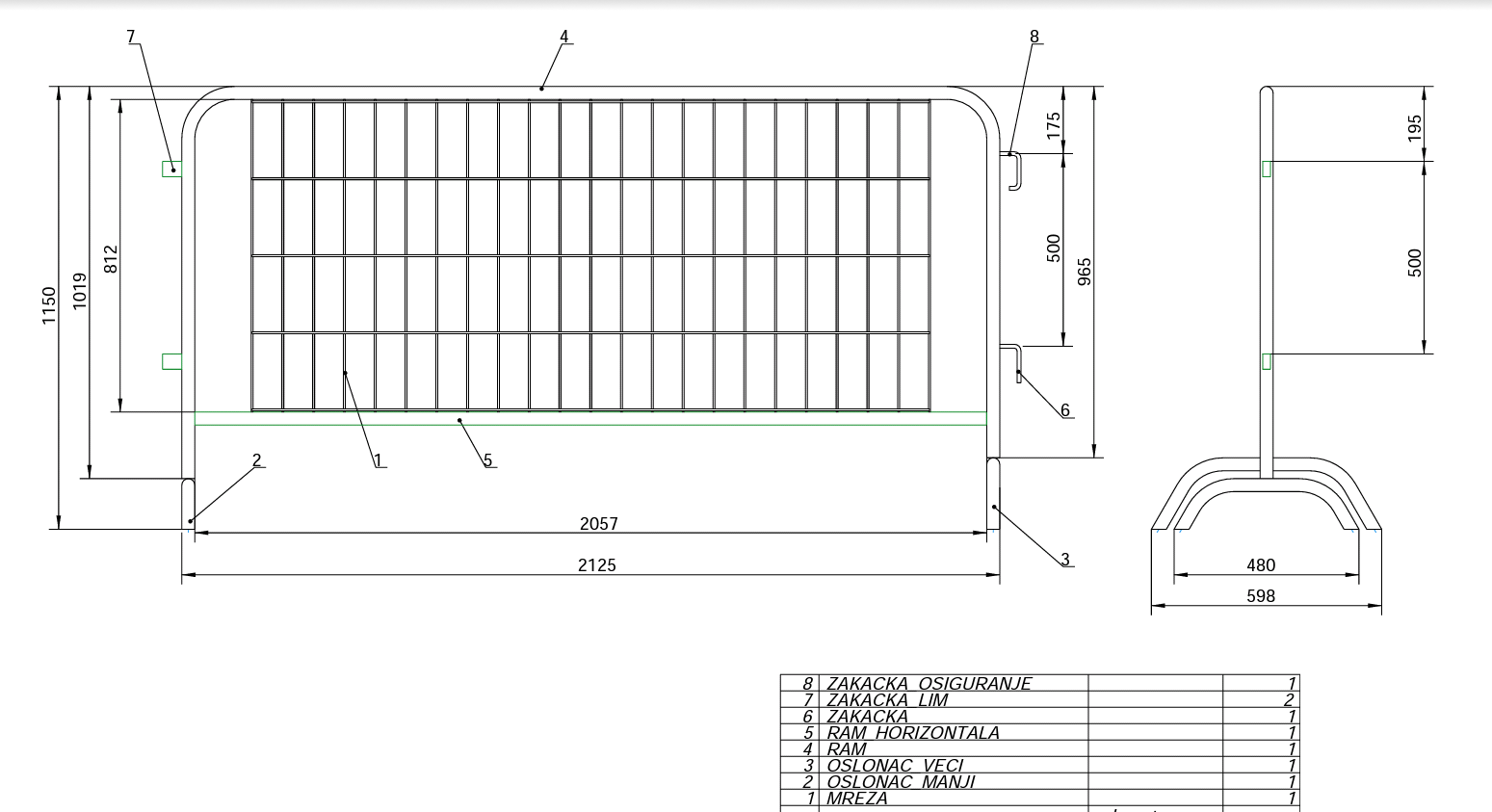
Posedujemo dva tipa ograda - niska ograda visine 115cm i širine 212cm i visoka ograda - visine 200cm i širine 350cm. Niske ograde se obično na ulazu na manifestaciju za kontrolu pristupa, ispred šankova, ispred koncertne bine. Na ograde je moguće postaviti crnu navlaku pa ona izgleda elegantnije ili aplicirati grafiku na baner ili mesh ciradi. Tehnički crtež se nalazi u galeriji slika. Ograde su pocinkovane i otporne su na sve vremenske uslove. Visoke ograde imaju betonske stope i povezuju se spojnicama i njihova namena je obično da predstavljaju spoljnu ogradu oko nekog prostora ili za određivanje granica gradilišta. Visoke ograde se mogu prekriti crnim platnom i odštampanom grafikom.

Ograde je moguće iznajmiti sa sopstvenom ili našom montažom.

Fotografije
Da li ste spremni za saradnju?

Slobodno nas kontaktirajte

Drugi o nama

Utisci

Saradnja sa iznajmljivanjeograda.rs je sjajna jer su usluge fleksibilne. Sve najbolje preporuke!.

Marko, Event Service

Iznamljivanjeograda.rs mi je bio pravi izbor kada sam organizovala svadbu. Uvek cu vas koristiti za svoje proslave!

Marta

Uvek smo vam na usluzi!

Kontaktirajte nas

telefon: 062221414
mail: info@iznajmljivanjeograda.rs

Pogledajte taodje i:
eventservice.rs
www.dreamevents.rs
www.iznajmljivanje.co.rs
instagram